Kentwood Multiplex Logo
Architectural Drawing

Multiplex Homes

Intelligence in Every Build

Welcome to Kentwood, where our ethos begins with intention. With over 40 years of combined expertise, Kentwood Multiplex is unlocking a new frontier of intentional land use across Metro Vancouver. Through sustainable Net Zero building and intelligent construction management processes, we build modern custom and multiplex homes designed for families, community and long-term livability.

Upcoming Projects

The Kentwood Difference

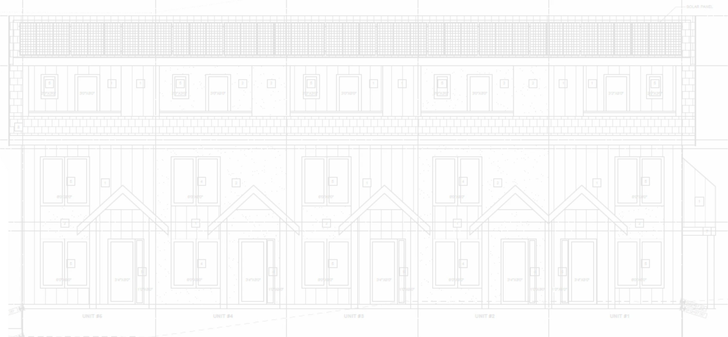
The Smart Advantage Behind Our Multiplex Home

The Kentwood Difference - Family Living

Crafted with net-zero construction and outfitted with solar panels, our multiplex homes set a new benchmark for sustainable urban living. Thoughtfully engineered for superior energy efficiency, they deliver year-round comfort, healthier indoor environments and meaningful utility savings for homeowners.

Built on Proven Excellence

Custom Home Exterior
Construction Planning
Modern Interior

At Kentwood Homes, our award-winning team brings deep industry knowledge and a strong track record in building sustainable, energy-efficient custom homes, recognized through Georgie and HAVAN Awards. Now, we're channeling that expertise into the multiplex home market.

From early planning and permits, to material selection and space design, our seasoned team handles every step with precision. And as the industry evolves, we keep elevating our craft to deliver smarter, higher-performing homes year after year.